DNYUZ
No Result
View All Result
DNYUZ
No Result
View All Result
DNYUZ
Home News

A peek inside the Fed’s renovations that are now at the center of a DOJ probe

January 12, 2026
in News
A peek inside the Fed’s renovations that are now at the center of a DOJ probe
A worker exits the construction zone surrounding the Federal Reserve Bank's main Washington D.C. offices.
The Federal Reserve’s two offices have been under construction for three years. Cost overruns are now at the center of a DOJ probe into the bank’s Chair. Heather Diehl/Getty Images
  • The Federal Reserve’s renovation project was expected to cost $1.9 billion. It now has a $2.5 billion price tag.
  • Lead paint and asbestos discoveries contributed to increased renovation expenses and delays.
  • Fed chairman Jerome Powell said a new DOJ probe is part of ongoing pressure from the Trump administration.

The Federal Reserve’s planned five-year renovation project is causing quite the stir in Washington.

Renovations began around 2022 on two Federal Reserve offices, the Marriner S. Eccles Building and the Federal Reserve Bank of East Building, which were first assembled in the 1930s, according to plans reviewed by the National Capital Planning Commission in 2021.

As workers gutted the aging structures, they uncovered lead paint and asbestos, pushing the cost of the renovations rose from $1.9 billion to $2.5 billion, as Federal Reserve chairman Jerome Powell described in a letter defending the renovation’s budget last year.

President Donald Trump has blamed the overruns on mismanagement and allegations of luxury additions. On Sunday, Kevin Hassett, director of the administration’s National Economic Council, told ABC’s This Week that the project became “the most expensive project in D.C. history.”

Later that day, Powell revealed the central bank now faces a potential Department of Justice investigation, and he’s facing a potential criminal indictment over the cost increases.

“No one — certainly not the chair of the Federal Reserve — is above the law,” Powell responded in a two-minute social media video. “But this unprecedented action should be seen in the broader context of the administration’s threats and ongoing pressure.”

As questions swirl around the renovations, Business Insider gathered images of the construction, floor plans for the renovations, and design mock-ups.

The Eccles and FRB-East buildings have been wrapped in scaffolding and cranes since 2022.

Scaffolding cranes tower over the Fed's building as scaffolding wraps around the office's exterior.
The Federal Reserve has been renovating its two buildings since 2022. The project is expected to wrap up by late 2027. Heather Diehl/Getty Images

Construction workers broke ground on the renovations in 2022 on the 93- and 88-year-old buildings.

The Fed said the building has not had a modernization project in decades. A series of decades-old electrical, heating, plumbing, and air ventilation systems ran through the historic building.

The project was necessary to “address a critical backlog of upgrades, to respond to changes in building codes and regulatory requirements, and to meet requirements for information technology, building security, environmental sustainability, and energy efficiency,” according to plans produced by the Fed and released to the public in 2021.

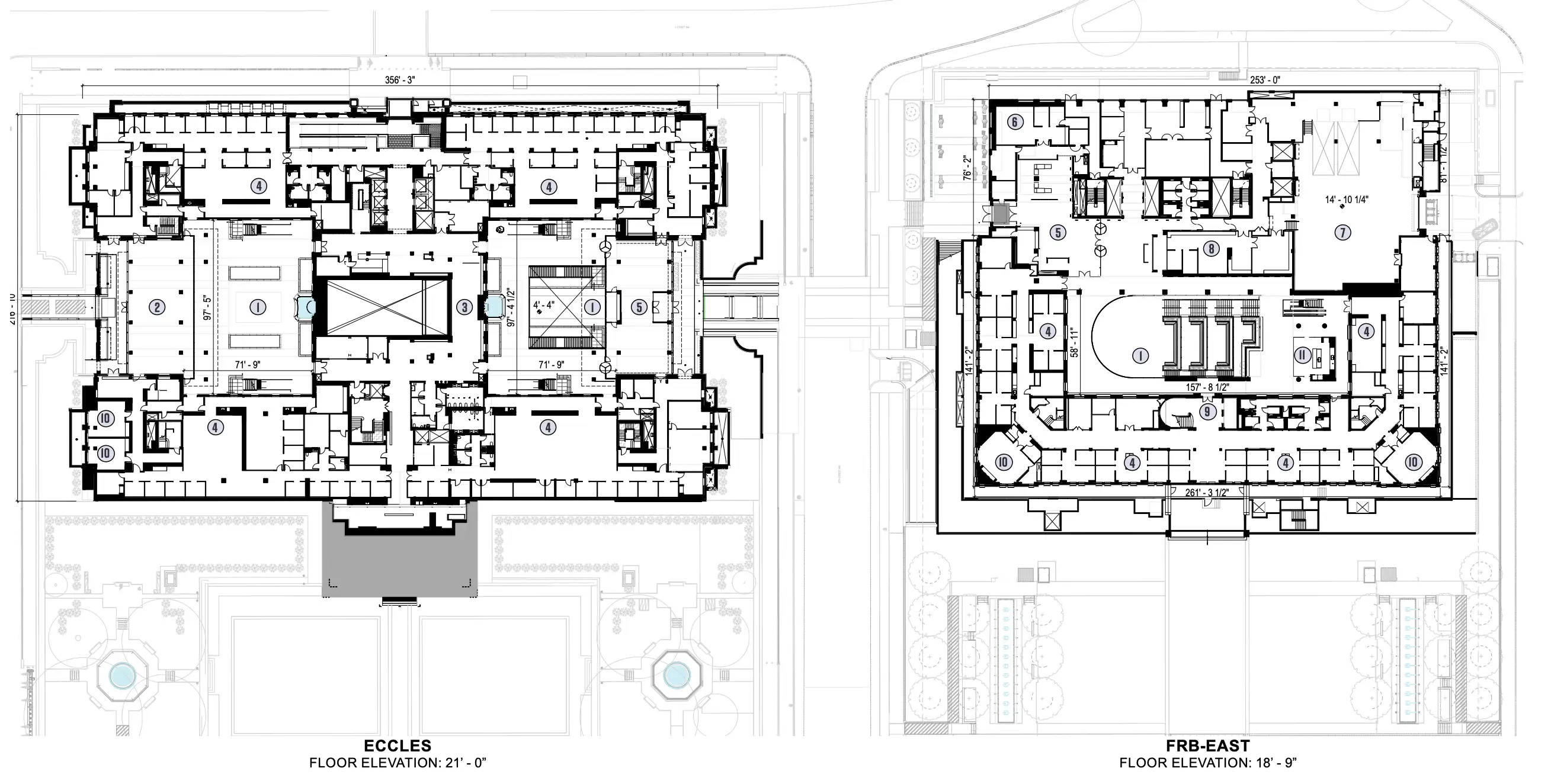
Documents show the Fed’s proposed floor plans for both buildings.

A floor plan of both Federal Reserve buildings
The Federal Reserve’s modernization plans were mapped out in an exhaustive 87-page document, released in 2021. The document includes floor plans, mock-ups, and explanations of landscaping decisions. Federal Reserve Board and Fortus

The Federal Reserve published floor plans for the expansion project in 2021. The plans plot out details like where new windows would be erected, why new shrubbery would be planted in specific areas on the lawn, how it would make offices more wheelchair accessible, and where historic marble will be reused.

Since the release of the plans, construction workers have uncovered asbestos and lead paint, resulting in higher-than-expected material requirements. Inflation has also increased the price of those goods.

A mock-up of the exterior, including plans to add some glass structures.

A mock-up of the exterior of the Fed building.
The Fed’s renovation plans include new glasswork that will surround the historic, stone elements of the building. Federal Reserve Board and Fortus

The modernization project would expand some sections of the Fed buildings, including areas with new glass-covered atriums.

The Eccles building’s courtyard will be converted into an atrium.

A mock-up view from the second floor in the Eccles Atrium
The main building’s atrium intended to mix “historically significant spaces and work space to balance preservation and modern office needs.” Federal Reserve Board and Fortus

The courtyard at the center of the central bank’s main building would become a glass-enclosed atrium. The renovation would also include new accessible ramps, and the existing wooden oak doors would be stained a medium brown.

Both historic buildings’ interiors were finished with hand-carved wood in the 1930s. The woodwork will remain intact after the renovation.

Inside the renovated Eccles Building Level 4 Lounge
The renovation is supposed to keep historic architectural elements while updating the decades-old bones underneath. Here is an example of a fourth-floor lounge with the salvaged woodworking and marble floor. Federal Reserve Board and Fortus

Much of the project is dedicated to balancing “preservation and modern office needs,” according to the plans. Several office spaces plan to reuse marble and wood from the original buildings.

The Eccles building’s center wing skylight would be moved to the fourth floor to let the light stream in.

A peaked natural light shaft with bronze beams lets light strem into the fourth floor.
The natural light shaft, which was constructed in 1977, is also getting an update that the Fed says will introduce “more natural daylight to the historic” fourth floor. Federal Reserve Board and Fortus

A natural light shaft, shown above, has sat on the top of the building since 1977. The renovation would relocate the glass casing to the fourth floor, allowing more light to enter nearby offices.

The core architectural details of each building are important to preserve, the Fed said. It can help project financial power.

A statue of a bald eagle perched on top of the Eccles building.
The project is meant to update the building’s office capacity while maintaining its key architectural details, like the bald eagle perched atop the entrance. Andrew Harnik/Getty Images

The Eccles building was designed to project stability during the Great Depression, with marble halls and bronze fixtures meant to inspire public confidence in the banking system. Those original details are being carefully restored, the Fed said in the plans.

White House officials have alleged the renovations include new VIP dining rooms and elevators, a vegetated roof, and millions of dollars in new marble. The Fed has denied those allegations in press releases.

The Eccles building has been in disrepair, the Fed says.

Ornate wood that was hand-crafted during the building's construction in the 1930s shows water damage
The Fed’s ornate architecture has endured nearly nine decades of wear, including water damage on the historic wood moldings, shown above. ANDREW HARNIK/POOL/AFP via Getty Images

Water damage has been an issue for the historic buildings, according to images produced by Getty photographers in a July 2025 walk-through of the construction. Pictures of the historic building’s lobby show extensive damage to ornate wood carvings.

Asbestos and lead paint have been a costly issue. Inflation hasn’t helped either.

Tarp is wrapped over sections of the Fed building where asbestos was found
Workers have been clearing asbestos from the building for much of the past decade. This picture, taken in 2017, shows a construction site inside the Eccles building where workers found the dangerous material. Federal Reserve

The Fed said it needed to make renovations to make its offices “safe, healthy, and effective places to work,” according to the Federal Reserve’s plans. For years, workers have uncovered asbestos throughout the historic buildings — a material now banned in most construction in the US.

As the project continues, more materials have had to be replaced than expected. Construction-sector inflation has made the overruns steeper.

Trump has seen the renovation project up close.

President Donald Trump and Chair Jerome Powell toured the Fed building in July 2025.
President Donald Trump and Federal Reserve chair Jerome Powell tour the Eccles building during the building’s renovation. Chip Somodevilla/Getty Images/Reuters

In July 2025, Trump toured the renovation project with Powell and Republican Sen. Tim Scott.

During a brief interview with reporters, Trump and Powell sparred over the cost of recent construction projects in the building.

The building is expected to be completed in late 2027.

A mock-up of the exterior lighting on the Eccles Building
Plans include new lighting to highlight historic features of the building. Federal Reserve Board and Fortus

This year, Fed press releases suggested construction workers would leave the building in the fall of 2027. Employees who have been working at temporary offices are expected to move in during the first quarter of 2028, if plans proceed accordingly.

Once staffers return to the office, the Fed said its new campus would save money.

“Over time, the Board has needed to lease space in several commercial office buildings to support its operations,” the Fed said in a July 2025 press release. “This project allows the Board to consolidate its operations and reduce expenses on leased space elsewhere.”

Read the original article on Business Insider

The post A peek inside the Fed’s renovations that are now at the center of a DOJ probe appeared first on Business Insider.

How Jeffrey Epstein got his hooks into ‘cheap’ Bill Gates — whom he accused of sleeping with prostitutes
News

How Jeffrey Epstein got his hooks into ‘cheap’ Bill Gates — whom he accused of sleeping with prostitutes

by New York Post
February 7, 2026

Bill Gates may be one of the wealthiest, smartest men in the world. But even those elevated qualities and his ...

Read more
News

Japan Ocean-Mining Test Successfully Hauls Up Potentially Valuable Mud

February 7, 2026
News

Mexican Cartels Overwhelm Police With Ammunition Made for the U.S. Military

February 7, 2026
News

Demanding Support for Trump, Justice Dept. Struggles to Recruit Prosecutors

February 7, 2026
News

Super Bowl Halftime Is the World’s Biggest Stage. He Designs It.

February 7, 2026
We asked 13 rising-star VCs how they use AI. Here’s what they told us.

We asked 13 rising-star VCs how they use AI. Here’s what they told us.

February 7, 2026
Lindsey Vonn Is Skiing on One Good Knee, but It’s a Helluva Knee

Lindsey Vonn Is Skiing on One Good Knee, but It’s a Helluva Knee

February 7, 2026
Prosecutors Began Investigating Renee Good’s Killing. Washington Told Them to Stop.

Prosecutors Began Investigating Renee Good’s Killing. Washington Told Them to Stop.

February 7, 2026

DNYUZ © 2026

No Result
View All Result

DNYUZ © 2026